Stonehaven
- Architecture
- Ongoing
- Residence
Nikhil Marmat
Jayesh Marmat,
Harsh W. Rathore
Esha Jaiswal
County Walk,
Indore, India
3400 sqft
Ongoing
Description.
Form Design Studio presents “Stonehaven Residence,” an expansive dwelling balancing functionality, elegance, and rooted design.
Located in Indore, Stonehaven is a modern family home designed to foster harmony between architecture and landscape. The residence features double-height volumes, seamless connections across levels, and terraces that extend the living experience outdoors.
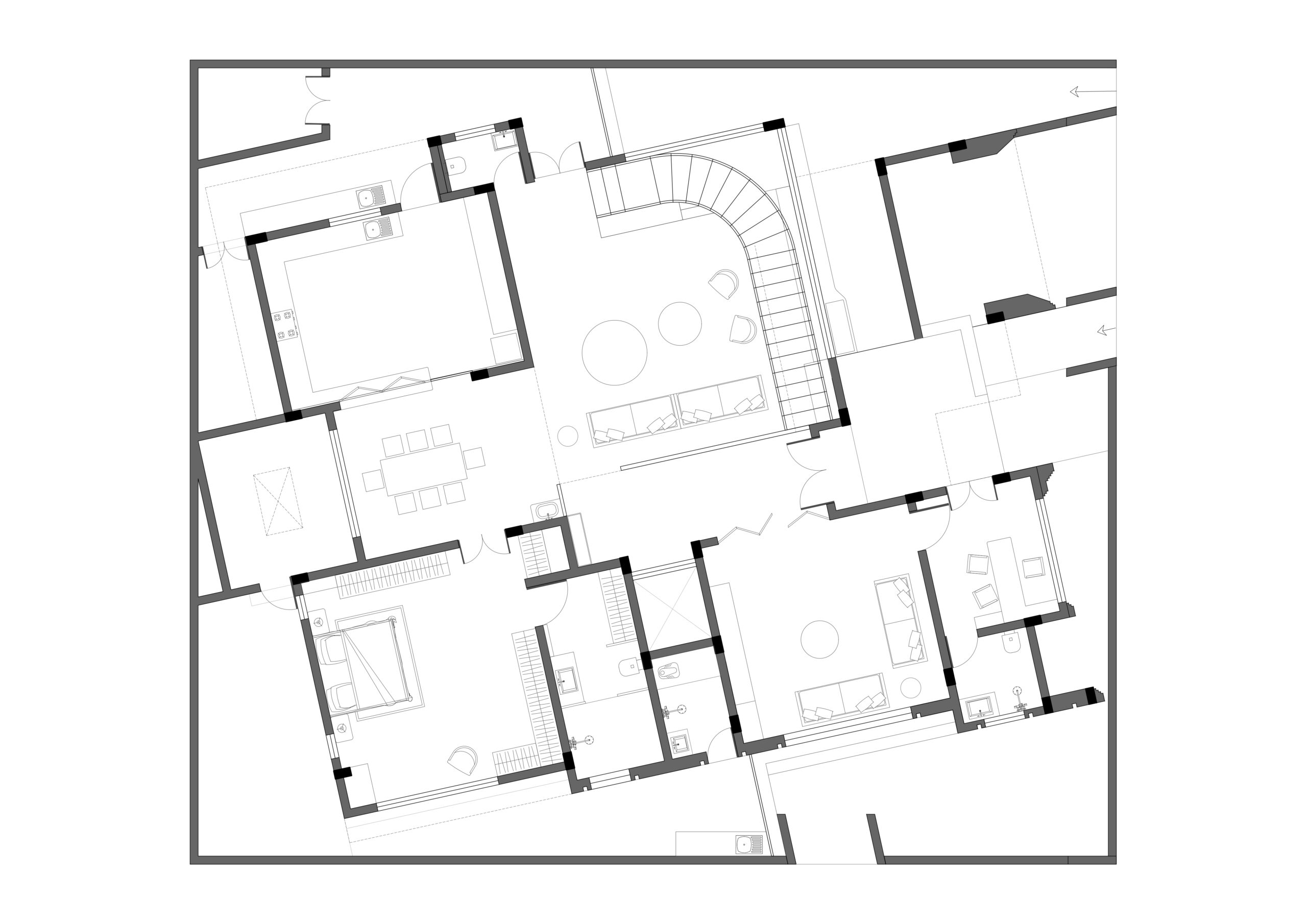
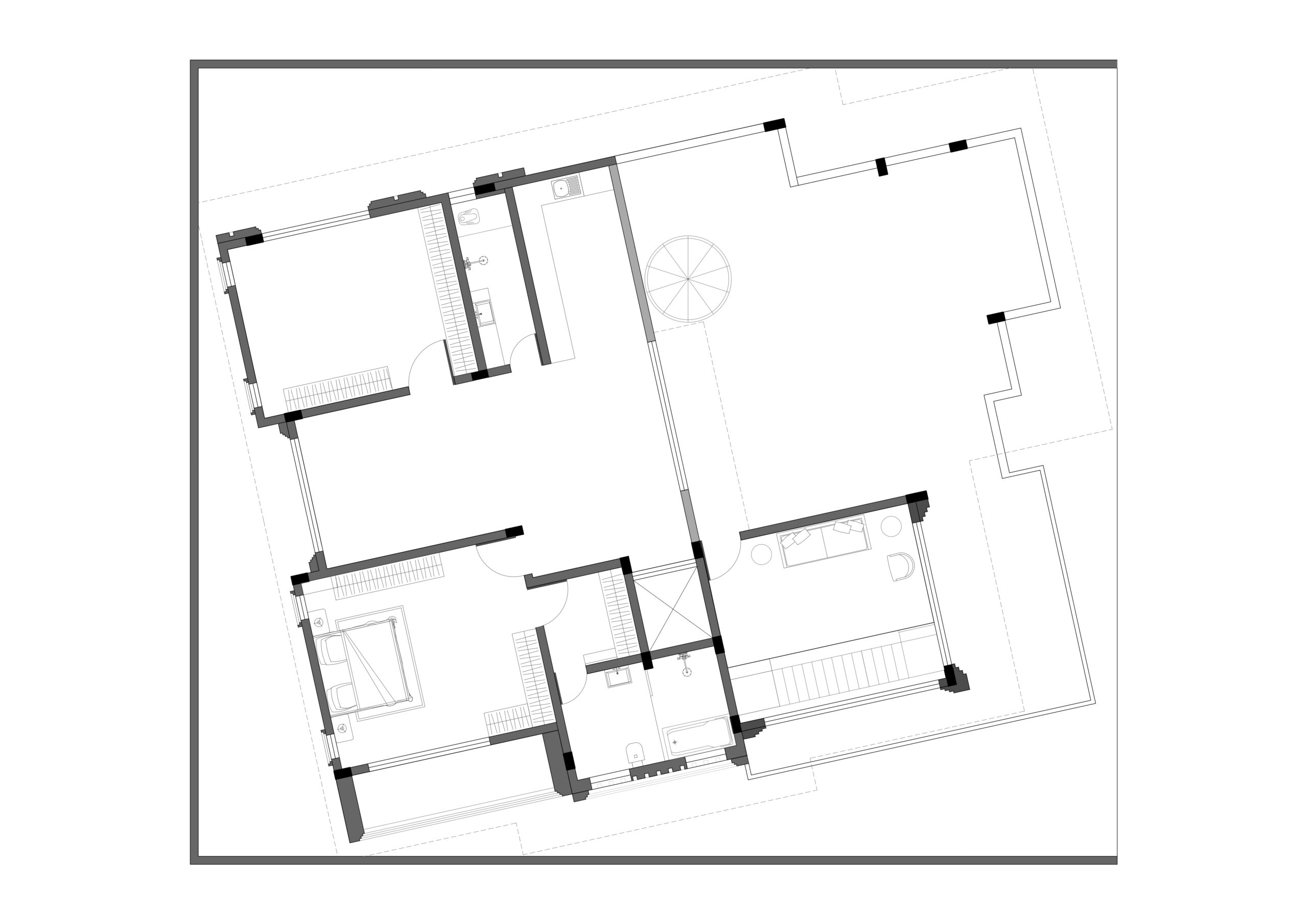
With three bedrooms on the first floor, a private suite and multipurpose room on the second, and generous gathering areas at the ground level, the home combines elegance, function, and warmth for everyday living.
Features.
Dynamic Spaces
Views
Material Choices







Layout
The planning of Stonehaven Residence balances openness with privacy, weaving in green edges, soaring volumes, and functional zones across three levels. Each floor is designed to serve both the family’s daily life and their social engagements.
Client Vision
Stonehaven was conceived to embody the stature and lifestyle of its client, a respected statesman in the region. The home needed to function not only as a private residence but also as a place to receive guests, hold meetings, and reflect cultural values.
Interiors
Warm Modern Living
The interiors of Stonehaven Residence are designed to feel both refined and welcoming, balancing the client’s stature with the warmth of a family home.






Work in Progress
Construction is currently underway, with the structural framework nearing completion. Exteriors and façade treatments are being detailed, while interior layouts and material selections are in progress.





