White Manor
- Architecture
- Ongoing
- Residence
Jayesh Marmat,
Mustafa Lokhandwala,
Harsh W. Rathore
Indore, India
2,800 sqft
Ongoing
Description.
White Manor is envisioned as a timeless family residence in Indore. With its pristine white neo-classical façades, grand proportions, and refined interiors, the project brings together elegance and comfort for multi-generational living.
The design takes inspiration from classical symmetry and refined detailing, expressed through a bold, all-white façade. Defined cornices, linear grooves, and recessed balconies create depth while maintaining a sense of restraint.
Within, soaring double heights in the living and dining areas establish a dramatic yet welcoming atmosphere, ensuring the house feels both monumental and livable.
Features.
Neo-Classical Façade
Spatial Flow
Private Domains







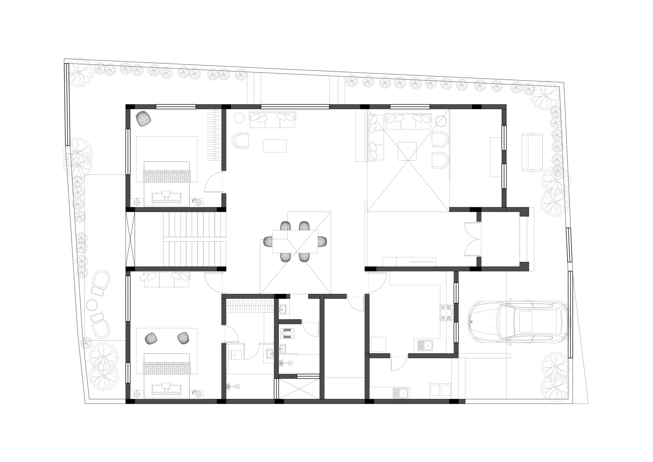
Layout
Thoughtfully planned across three levels, the layout of White Manor creates a seamless balance between open, shared volumes and private domains. Landscaped gardens wrap the home on three sides at the ground level, enhancing ventilation and views. Double-height spaces establish vertical connections, while bedrooms and terraces offer intimacy and retreat.
Client Vision
For Mayur Sharma, White Manor is more than a house — it is a residence designed to host family across generations. Conceived as both a year-round home and a gathering place for loved ones, the project reflects his aspiration for a refined, comfortable, and enduring space that will stand as a symbol of family legacy in Indore.
Interiors
Refined Elegance Within
The interiors carry forward the exterior’s neo-classical aesthetic through a palette of whites, soft neutrals, and warm accents. Planned with a focus on volume and proportion, the spaces combine openness with intimacy, offering both grand entertaining areas and quiet personal retreats.






Work in Progress
Construction is currently underway, with the structural framework nearing completion. Exteriors and façade treatments are being detailed, while interior layouts and material selections are in progress. The project is on track to bring the envisioned White Manor to life in the coming months.



