Pixel House
- interior
- Ongoing
- Residence
Naman Kumawat
Deepti Dhakad
Mustafa Lokhandwala
Golf Links,
Indore, India
4200 sqft
Ongoing
Description.
Form Design Studio was tasked with reimagining the residence from the ground up.
The task included overhauling its exterior facade, landscape, and interior spaces to create a cohesive and tranquil living environment. The result is a masterful interplay of clean lines, a muted colour palette, and rich textures, where every detail is curated to contribute to an atmosphere of subtle luxury and profound calm.
The overall strategy was to create spaces that feel open, luminous, and uncluttered, allowing natural light to become a key design element.
Features.
Sun-Drenched Living Spaces
Architectural Metamorphosis
Unified Material Palette







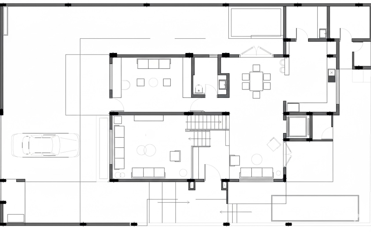
Layout
Meticulously zoned across three levels, the home’s layout is crafted to create a perfect hierarchy of spaces, separating grand entertaining zones from the private family sanctum. The design thoughtfully integrates multiple living areas and outdoor connections, ensuring a functional and fluid living experience.
Client’s Vision
The homeowners envisioned more than a simple renovation; they desired a complete rebirth of their property. The core objective was to overhaul the interiors to establish a pristine contemporary aesthetic, creating a modern home that is both visually stunning and deeply comfortable for family life.
Interiors
A Contemporary Metamorphosis
The interiors carry forward the exterior’s pristine aesthetic through a sophisticated palette of whites, soft neutrals, and warm accents. The spaces masterfully combine a sense of openness with an enveloping intimacy.









